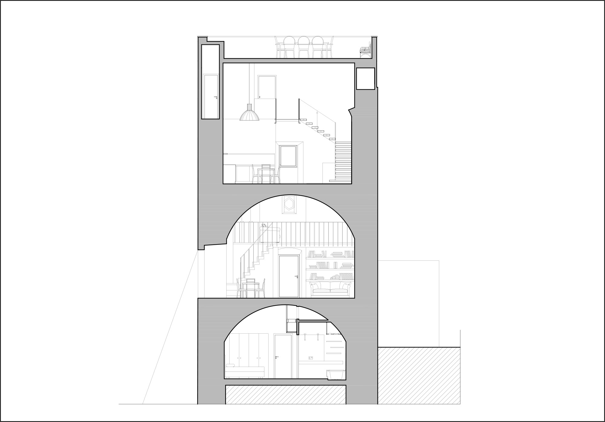
Borgo Tricosto - La torre
Restauro - Risanamento conservativo - Consolidamento 2006 -2020
Borgo Tricosto - La torre
- Luogo: Borgo Tricosto - Capalbio
- Tipologia: Residenziale
- Categoria:
- Restauro
- Risanamento conservativo
- Consolidamento
- Anno: 2006 - 2020
- Committente: Privato
- Impresa: Stilos Costruzioni
Progetto:
Ing. Andrea Capolino, Arch. Gloria Galanti, Arch. Alessandra Pettine, Arch. Gino Daviddi
